SoldResidence 1 & 2/74 Leopold Street, South Yarra
Prized Domain Precinct Opportunity
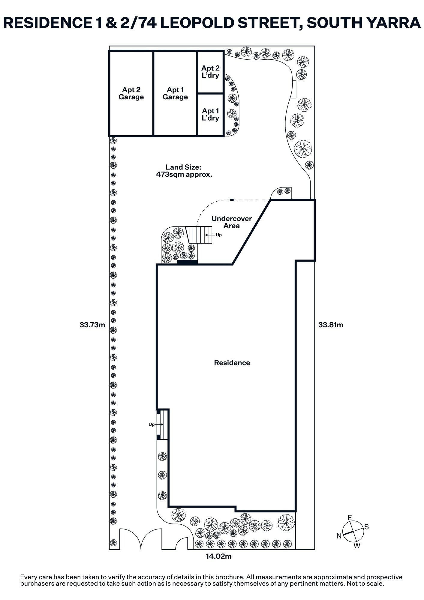
Displaying evocative period charm, these two whole floor maisonettes deliver an outstanding investment, lifestyle or renovation opportunity in one of Melbourne’s most coveted locations between the Royal Botanic Gardens and Fawkner Park.
Highlighted by ornate ceilings and leadlight windows, both residences are superbly presented and generously proportioned. The ground level residence comprises three double bedrooms with robes, a home office, bright bathroom and powder-room. Bathed in northern light, the graciously proportioned sitting and formal dining rooms are complemented by a well-equipped kitchen and light-filled living/dining room opening to a large north-facing terrace and the shared paved garden area. Mirroring the lower floorplan, the upstairs residence also enjoys sensational city views from the home office while the living/dining room opens to a large north-facing balcony. Each residence includes security intercom, separate laundry and lock up garage. Additional parking (off street) with auto gates.
Whether as a rewarding addition to any investment portfolio, the solution to multi-generational living requirements or the chance to consolidate the two residences into the one luxurious family home, the options are endless (STCA). This is indeed a unique Domain Precinct opportunity. Land size 473sqm approx.
Enquire about this property
Request Appraisal
Welcome to South Yarra 3141
Median House Price
$2,030,000
2 Bedrooms
$1,389,000
3 Bedrooms
$2,100,000
4 Bedrooms
$2,912,500
South Yarra, an iconic Melbourne suburb, is renowned for its sophisticated charm, merging high-end retail, exquisite dining, and vibrant nightlife with green spaces.





























