Sold73 Dent Street, Ashburton
Development Potential in Lifestyle Location
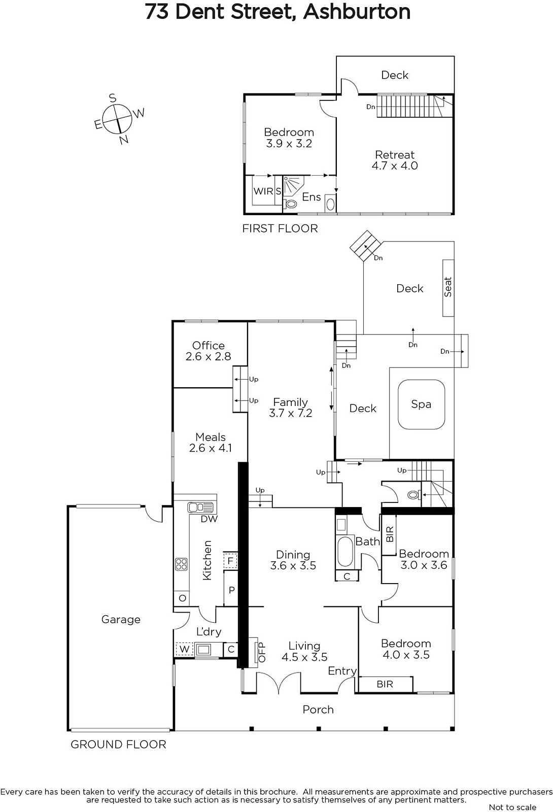
Privately positioned on a wide and expansive 748sqm approx. prime parcel of land (frontage 18.9m approx.), this generous and comfortable double storey brick home set amidst established garden surrounds delivers a wonderful environment for family living with exciting future prospects in an outstanding location close to shopping, schools, transport and scenic parklands. Beautifully presented, brimming with natural light and designed to capture the outdoors, the versatile floorplan is introduced by charming formal sitting with open fireplace, zoned dining domain, well-appointed kitchen overlooking casual meals, designated study, spacious sunken lounge opening to the tiered entertaining deck with in-built spa and expansive backyard. Two light-filled double bedrooms with built-in robes are serviced by the updated central bathroom and separate toilet plus laundry, completing the homes ground level. Upstairs presents an expansive parental retreat with second living area or optional fourth bedroom and balcony boasting sweeping treetop vistas, sundrenched main bedroom with walk-in robe and ensuite. Additional highlights include ducted heating, evaporative cooling, hardwood floors, decorative ceiling roses & pendant lighting, picture rails, sizeable storage shed, secure two-car garage and off-street parking. Ideal for now whilst providing scope to renovate or transform into a new contemporary home capitalising on excellent foundations and first class family environs, alternatively explore the remarkable opportunity of a dual development afforded by the exceptionally broad frontage STCA. A quiet position in a central location highly coveted for its proximity to High Street shops & cafes, Alamein Station, Ashburton, Solway & St Michaels Primary Schools, Chadstone Shopping Centre, Watson Park and Gardiner Creek Trail.
Enquire about this property
Request Appraisal
Welcome to Ashburton 3147
Median House Price
$1,919,296
3 Bedrooms
$1,586,333
4 Bedrooms
$2,060,833
5 Bedrooms+
$2,430,000
Ashburton, situated about 12 kilometres southeast of Melbourne's CBD, is a suburb that seamlessly merges its historical origins with modern living and a dynamic real estate market.









