Sold56 Molesworth Street, Kew
Stunning Family Entertainer In Studley Park Precinct
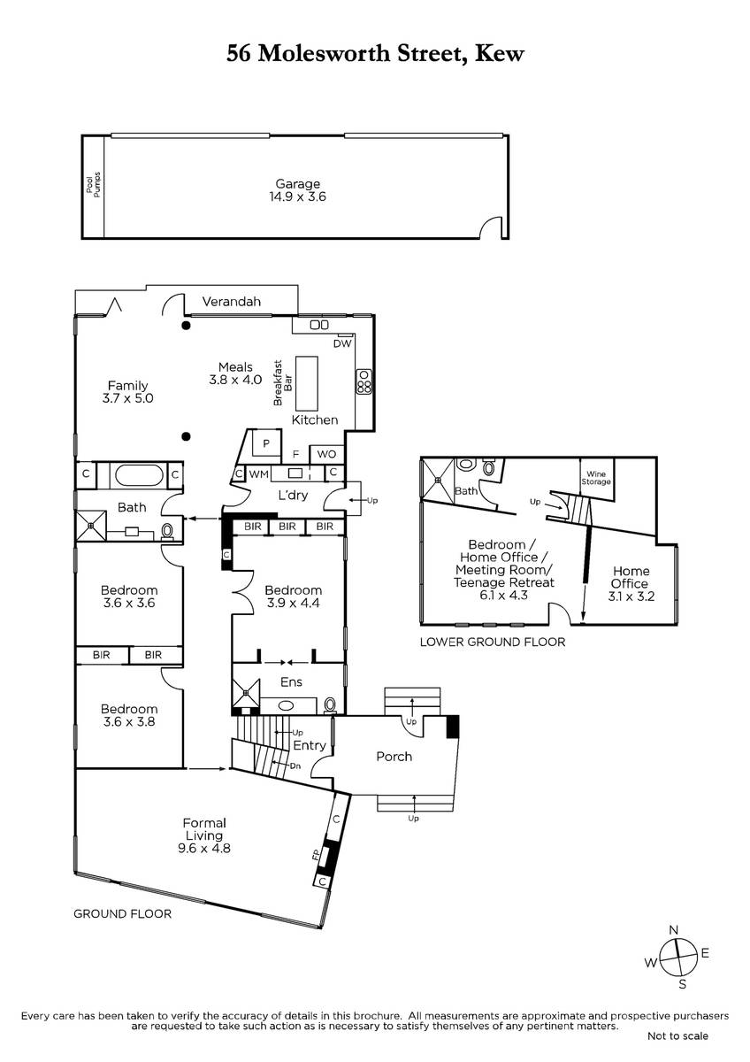
Originally designed by a renowned Architect and interior design duo for their own home and office, this comprehensively renovated contemporary residence nestled on a generous 724sqm (approx.) allotment is situated in the prestigious Studley Park precinct, one of Melbourne's finest residential areas. With its compelling standout street presence and eye-catching façade, it again sets a benchmark for family luxury with its stunning light-filled interior and northern living and entertaining spaces.
Featuring magnificent picture windows, crisp white decor and polished hardwood floors; the interior is introduced by a welcoming oversized pivot door, tiled entrance flowing to a lower-level home office and board room as a possible isolated, COVID safe workspace, fourth bedroom or teenage accommodation with its own bathroom. The lower level features its own separate front entrance allowing for complete separation of work and home. The upper level showcases an entertaining or relaxation room with City skyline views and vistas of tree tops and the mature Golden Elm tree, close the concealed sliding door, ignite the open fire and enjoy the serenity of the Studley Park precinct as you sit amongst the trees. There are three bedrooms with BIRs, main with a sparkling ensuite, a fully-tiled family bathroom and laundry; Through to an expansive family living precinct with glass walls incorporating a sleek Caesarstone kitchen equipped with an island bench and prestige suite of appliances by Miele plus an integrated Fisher and Paykel fridge/freezer. Flowing through bi-fold doors to a paved alfresco dining area and raised deck overlooking a superb 2.1m deep solar-heated, low chemical, self-cleaning pool with the subtle sound of cascading water from the waterfall into the pool, provides a billabong like experience. A feature black glass wall reflects the pool, garden and sun setting sky whilst concealing a remote drive-in/drive-out double garage/storage with rear lane access. The outdoor living spaces provide a perfect environment for indoor/outdoor living and entertaining. Other impressive features included are an alarm, ducted heating, ducted vacuum, reverse cycle air conditioner (family living), open fireplace (sitting room), high quality fixtures and fittings including concealed sliding doors, ample storage including roof and wine and a gas mains barbeque.
Offering a superb living environment close to the Yarra Parklands for recreation, Kew Junction shopping, including the popular Leo's Fine Foods and Toscano's, cafes and restaurants or Victoria Gardens Complex. With easy access to many of Melbourne's finest schools, public transport, the Eastern Freeway and only 7kms to the CBD - all the amenities the area is renowned for.
Land size: 724sqm approx.
Enquire about this property
Request Appraisal
Welcome to Kew 3101
Median House Price
$2,639,333
2 Bedrooms
$1,671,667
3 Bedrooms
$2,169,667
4 Bedrooms
$2,893,333
5 Bedrooms+
$4,418,333
Kew, positioned just 5 kilometres east of Melbourne's CBD, is renowned for its sophistication and elegance.




























