Sold40 Marshall Avenue, Kew
Exceptional Space and Charm
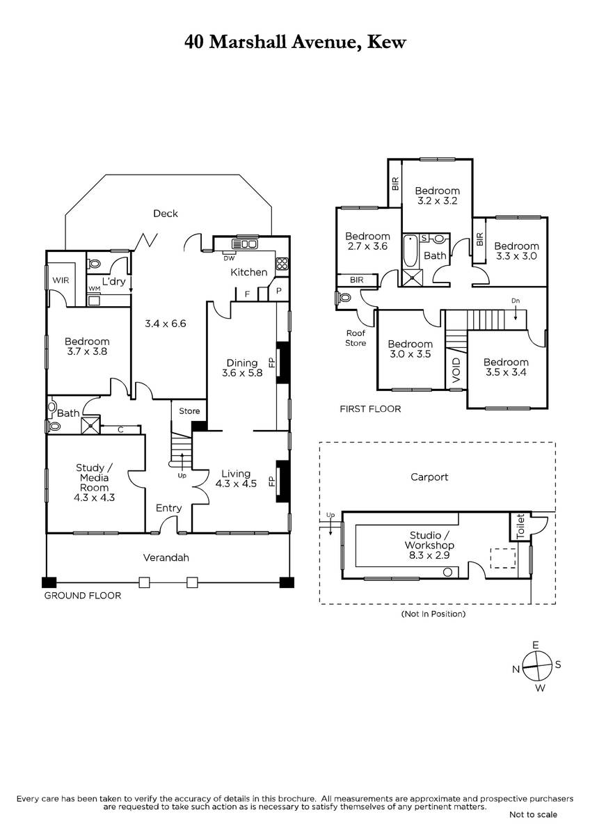
Impressively occupying a 660sqm approx. allotment on the corner of Parkhill Rd, this gracious solid brick period residence's substantial proportions cater with style and elegance to the most demanding family requirements in a prized location near Victoria Park, High St and Cotham Rd trams, Kew Junction and elite schools.
A broad verandah introduces a central entrance hall, elegant sitting room with gas log fire, a generous formal dining room with gas log fire and a versatile home office or media room, all boasting ornate ceilings and leadlight windows. Natural light streams through the expansive open plan living and dining room with a gourmet kitchen appointed with Miele/Asko appliances and stone benches. The living space opens out to a deep private northeast garden, a large freestanding studio or workshop and secure carport accessed from Parkhill Rd. The main bedroom with walk in robe is peacefully positioned downstairs alongside a fully tiled bright bathroom while a sensational children's zone upstairs comprises four additional bedrooms with built in robes, a retreat or 6th bedroom and a stylish bathroom.
This superb family domain also includes RC/air-conditioning, laundry, 3rd toilet and ample storage.
Enquire about this property
Request Appraisal
Welcome to Kew 3101
Median House Price
$2,676,500
2 Bedrooms
$1,475,000
3 Bedrooms
$2,110,000
4 Bedrooms
$2,870,500
5 Bedrooms+
$4,680,000
Kew, positioned just 5 kilometres east of Melbourne's CBD, is renowned for its sophistication and elegance.




















