Leased4/29 Heatherhill Road, Frankston
Bright and Spacious in Convenient and Peaceful Location
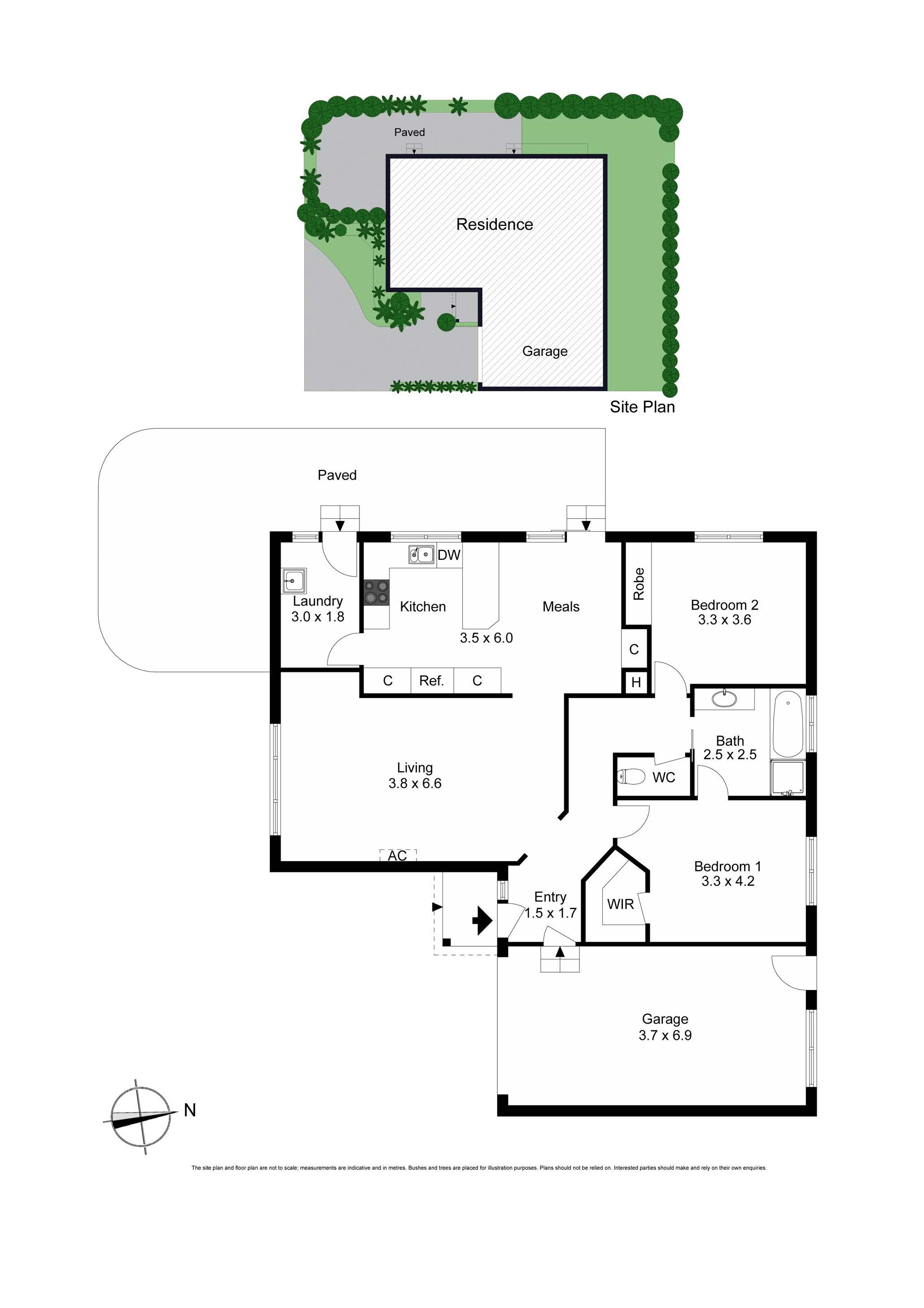
Peacefully tucked at the rear of a boutique group, this immaculate two-bedroom home offers easy living in a central Frankston location. Just a short stroll to Heatherhill Road shops, Bruce Park Reserve and zoned for Frankston High School, it combines comfort and convenience with low-maintenance appeal.
A sunlit lounge with study nook flows to the dining and kitchen zone with breakfast bar, ample storage and glass doors opening to a private courtyard. Two generous bedrooms with built-in robes share a spacious bathroom.
Warm interiors and a private, easy-care garden create a welcoming retreat, with additional features including gas ducted heating, split system, ceiling fans, designated laundry with rear access, and single car remote control garage with internal access to the property.
Moments from Monash University, Bayside Shopping Centre and Frankston’s foreshore, this beautifully maintained and presented home offers peace and tranquillity and is a lifestyle opportunity not to be missed.
**To Inspect**
Please refer to the listed inspection times. If no inspection time is available or you are not able to make the listed time/s please click "Get in Touch" to request an Inspection Time or Contact Agent and register your interest.
**Please Note**
Open for Inspection times and property availability is subject to change without notice. We highly recommend registering for an inspection you are going to attend to avoid disappointment for cancellations. If you are registered for an inspection, you will be notified by SMS if the inspection is cancelled.
**Caution**
Marshall White has exclusive leasing rights to this property. We do not advertise on Gumtree, Facebook Marketplace or any other social media platforms. Please beware of scammers and apply only via the official advertising link using the Snug platform.















