Sold276 Richardson Street, Middle Park
Blue Chip Victorian Ready for Reinvention
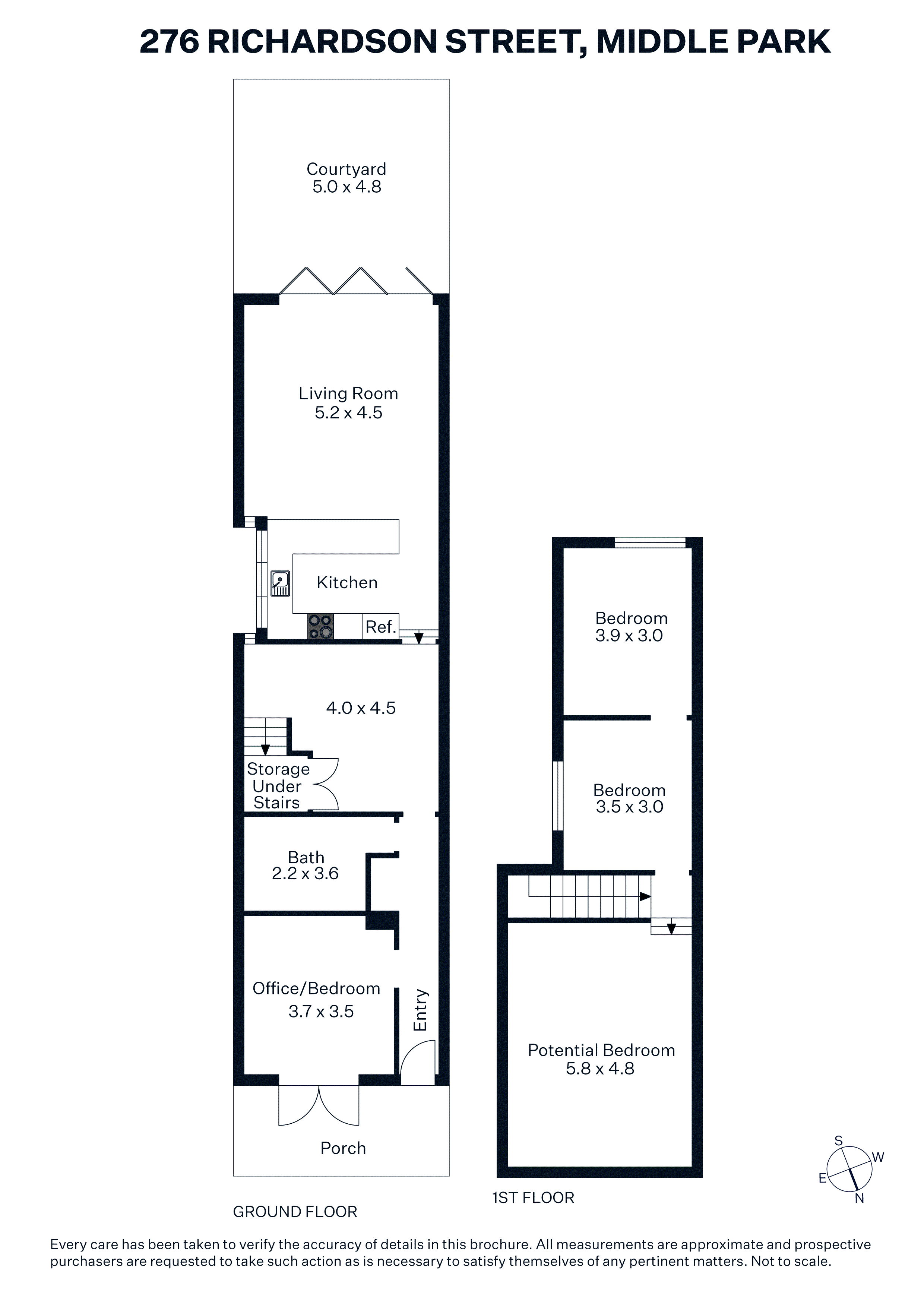
One of Middle Park’s most exceptional opportunities, this solid brick Victorian delivers a rare blank canvas in the heart of the village. Once configured as a three-bedroom, two-bathroom home, it now invites a full visionary transformation, making it the perfect moment to call the architect and create something truly remarkable, capitalising on its prized lifestyle position and desirable northern frontage.
The current two-level layout offers flexibility, allowing restoration of the original floorplan or a contemporary reworking tailored to modern living. Open-plan zones extend to the sunlit courtyard, encouraging seamless connection to the outdoors, while the site's depth supports expansion and additional accommodation, including three or more bedrooms, depending on the design and approvals (STCA).
Commercial 1 zoning introduces live-and-work potential, supporting a dynamic village lifestyle, with the address placing you within steps of cafés, city transport, the Grand Prix circuit, MSAC and the beach, and is zoned for Albert Park College and Middle Park Primary School. Land size: 127sqm (approx)
Enquire about this property
Request Appraisal
Welcome to Middle Park 3206
Median House Price
$2,928,333
2 Bedrooms
$1,911,167
3 Bedrooms
$2,383,333
4 Bedrooms
$3,832,501
Between the city of Melbourne and the expansive waters of Port Phillip Bay, Middle Park is a prestigious suburb known for its well-preserved Victorian and Edwardian architecture.




















