Sold27 Munro Street, Armadale
Unparalleled Luxury and Elegance
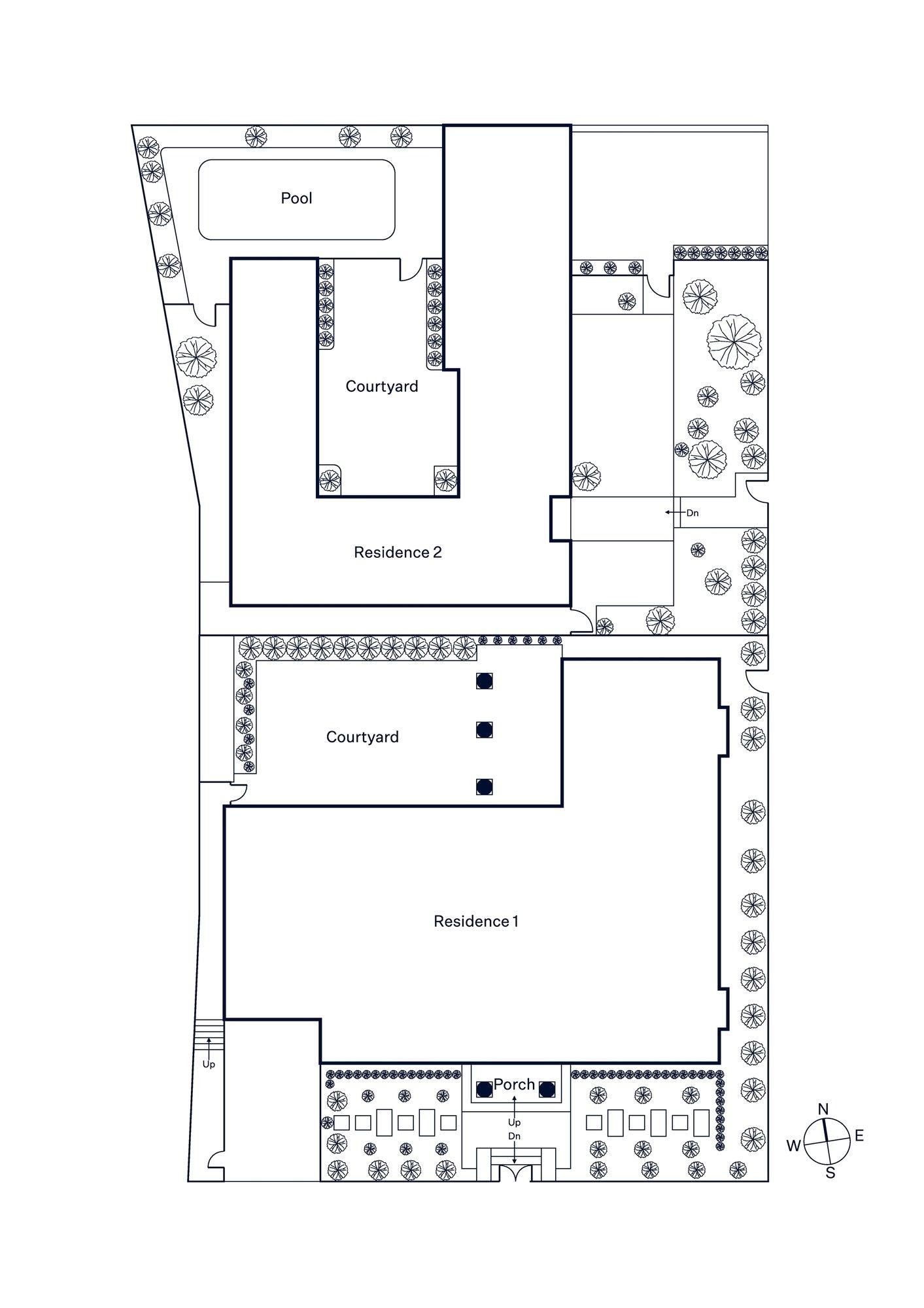
The rare opportunity to create what would likely be the largest land holding in the Munro Estate, Armadale. Reflecting classic European grandeur and elegance, this spectacular Munro Street residence brilliantly designed by architect Drew Cole with interiors by Stuart Rattle and landscaped gardens designed by Paul Bangay impressively showcases spectacular proportions and an unprecedented level of finish through three lift-connected levels of luxurious family living.
A reception hall of palatial proportions featuring soaring 3.2m ceilings and rich oak parquetry floors introduces a gracious sitting room with gas fireplace and cleverly concealed fitted study area. Breathtaking in scale, the open plan living and dining room is superbly served by a premium kitchen appointed with marble benches, an integrated Sub Zero fridge/freezer and wine fridge and a fully equipped second kitchen featuring La Canche and V-Zug ovens. The living areas open to a private limestone paved north-facing garden with undercover terrace. A convenient guest bedroom with robes, gas fire and a stylish bathroom are downstairs while both a lift and sweeping staircase lead up to the opulent main bedroom with deluxe walk in robe and designer en suite, two additional king-sized bedrooms with walk in robes and lavish en suites, a 5th bedroom, kitchenette/laundry and landing retreat/study area. On the basement level there is a spacious home theatre, wine cellar/storeroom and 5-car garage.
It should be noted that the adjacent property at 115 Kooyong Road is also available with the sale. Positioned at the northern boundary and currently occupied by a single level 3-bedroom home, if incorporated, it would provide the perfect space for a luxurious outdoor entertaining precinct and pool if desired.
Exclusively situated within the tightly held Munro Estate just a short walk to High Street’s renowned restaurant and retail strip, Armadale station, Beatty Ave, elite schools and trams, it is comprehensively appointed with C-bus home automation, alarm, video intercom, zoned heating/cooling and 2nd laundry.
*Potential to purchase additional 520sqm to the north of this property*
Enquire about this property
Request Appraisal
Welcome to Armadale 3143
Median House Price
$2,400,167
2 Bedrooms
$1,816,666
3 Bedrooms
$2,253,667
4 Bedrooms
$4,985,000
Armadale, situated just 7 kilometres southeast of Melbourne’s CBD, is a charming suburb celebrated for its sophisticated blend of heritage and modernity, particularly in its real estate offerings.



























