For Lease1A Reserve Road, Beaumaris
Modern Coastal Elegance in a Premier Beaumaris Setting
Delivering an exceptional standard of coastal luxury, this architecturally designed four-bedroom, three-bathroom residence offers expansive proportions, multiple living zones and refined finishes, all moments from the bay, village shopping and leading schools.
Thoughtfully arranged across two impressive levels, the home welcomes you with a generous formal lounge and a fully appointed cinema room, complete with projector, large screen, wall-mounted television and ambient fireplace—creating the perfect environment for relaxed evenings or entertaining. Custom shelving enhances both style and functionality throughout.
Designed with entertaining in mind, the games and billiard room is a true highlight, featuring lighting and a sleek bar area. Built-in bookcases add a layer of sophistication, allowing the space to function equally well as a library, retreat or entertaining hub.
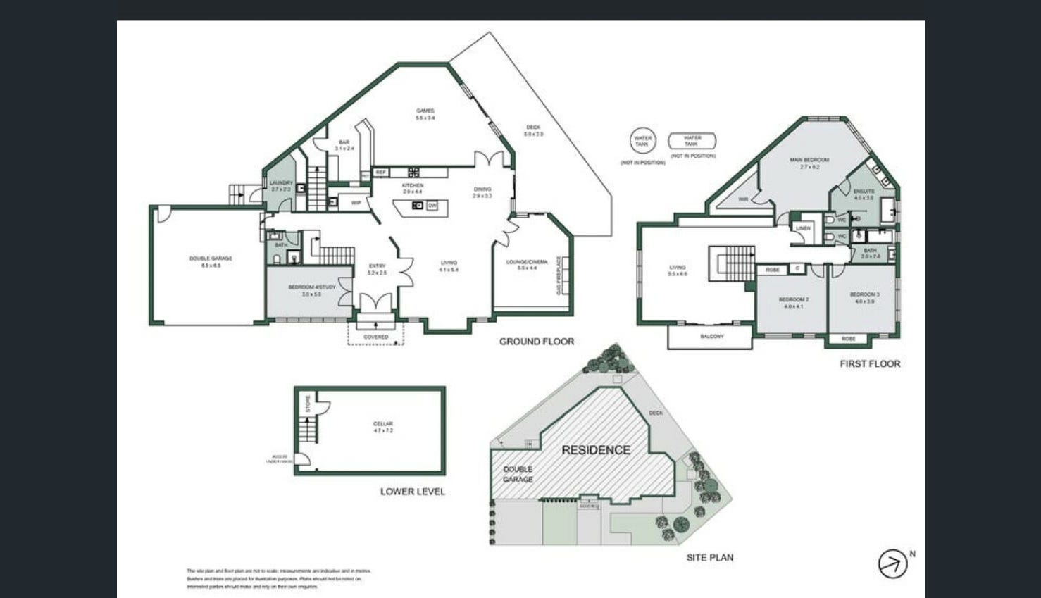
A rare and versatile inclusion is the expansive underground cellar, offering outstanding flexibility as a wine collection space, home gym, private theatre, studio or additional storage—adaptable to suit a variety of lifestyles.
At the heart of the home, the light-filled open-plan kitchen and living domain flows seamlessly to a decked outdoor entertaining area and landscaped garden. Remote-controlled, wind-sensitive awnings provide year-round alfresco comfort, while sustainable features include a water tank, Rainbird irrigation system and both gas and solar hot water.
Year-round comfort is assured with a three-zone, fully ducted Brivis heating and cooling system. Additional highlights include ducted vacuuming, security alarm, quality appliances including a dishwasher, and a combination of light grey sheer blinds and block-out blinds to balance privacy with natural light.
Upstairs, a second living area with Bay views and balcony offers an ideal retreat with built-in shelving. The luxurious master suite is a private sanctuary, enhanced by double-glazed windows for superior insulation and an external roller shutter for added privacy and peace of mind. Additional bedrooms upstairs with BIR.
Positioned in one of Beaumaris’ most desirable pockets, the home is within easy walking distance of the beach, Rickett’s Point, local cafés and Beaumaris Concourse. Zoned for Beaumaris Secondary College and close to Beaumaris North Primary, Beaumaris Primary, Stella Maris, Mentone Grammar and Mentone Girls’ Secondary College.
An outstanding opportunity to secure a high-calibre family residence offering space, comfort and a premium bayside lifestyle.
**To Inspect**
Please refer to the listed inspection times. If no inspection time is available or you are not able to make the listed time/s please click "Get in Touch" to request an Inspection Time or Contact Agent and register your interest.
**Please Note**
Open for Inspection times and property availability is subject to change without notice. We highly recommend registering for an inspection you are going to attend to avoid disappointment for cancellations. If you are registered for an inspection, you will be notified by SMS if the inspection is cancelled.
**Caution**
Marshall White has exclusive leasing rights to this property. We do not advertise on Gumtree, Facebook Marketplace or any other social media platforms. Please beware of scammers and apply only via the official advertising link using the Snug platform.
Enquire about this property
Request Appraisal
Welcome to Beaumaris 3193
Median Rental Price
$1,050
3 Bedrooms
$872
4 Bedrooms
$1,350
5 Bedrooms+
$1,407
Beaumaris, 20 kilometres southeast of Melbourne's CBD, is a coastal suburb known for its stunning beaches and cliff-top parks.


























