Sold194A&B Esplanade, Brighton
Exclusive Beachfront Multiple Residence Opportunity
Sold by Ben Vieth - Marshall White
Rarely does an opportunity of such exceptional quality become available along Brighton’s prestigious beachfront. Offered for the first time as one, these meticulously designed residences spread over three levels including rooftop and rear parking from Park Street, offer a unique chance to experience the pinnacle of coastal living, with panoramic views of Melbourne's magnificent bay. A sound investment with further ability to capitalise on the block, or restore to one grand home, the options are as expansive as the views from every level. Set on 685sqm* of prime land, opposite prime Brighton Beach.
194B Esplanade, Brighton -
Boasting three spacious bedrooms and two elegant bathrooms, this ground-floor residence provides ample space and comfort for both relaxation and entertaining. The property also includes a convenient double garage accessed from Park Street, ensuring ease and security. Step outside to discover two beautifully appointed courtyards. The first features unobstructed, irreplaceable views of the bay, stretching across Bayside towards the city skyline. The second courtyard offers a private, expansive outdoor entertaining area, accessible from both the side entry and property living area. This space is ideal for hosting gatherings or simply enjoying peaceful moments in a serene environment. With its modern finishes and top-quality fixtures, this home is move-in ready, inviting you to settle in and start enjoying the luxurious lifestyle it affords
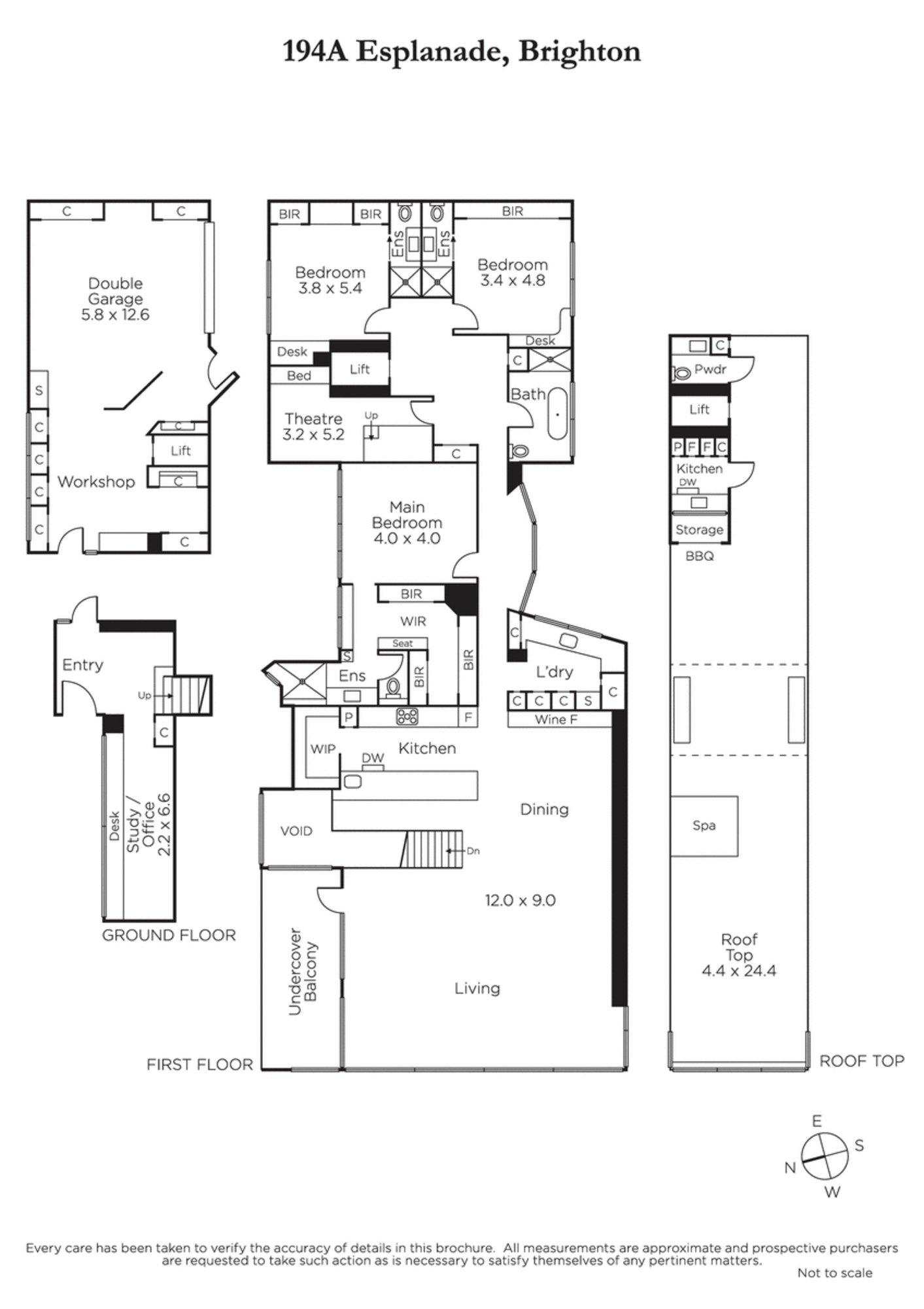
194A Esplanade, Brighton -
This stunning designer residence across from Brighton Beach offers breathtaking bay and CBD views. Featuring four bedrooms plus an office, it spans three levels and culminates in a rooftop paradise with a spa and Miele kitchen. The gourmet kitchen includes a concrete island, Wolf and Liebherr appliances, and flows into a spacious dining area framed by floor-to-ceiling glass. Each bedroom has ample storage and designer ensuites, with a home theatre that can serve as a fourth bedroom. Secure entry, double garage, and premium features like double-glazed windows and climate-controlled wine storage enhance this luxurious home, all within walking distance of Church Street’s cafes, shopping, fine dining, and prestigious schools like Brighton Grammar and Firbank Girls' Grammar.
*approximate land size
Enquire about this property
Request Appraisal
Welcome to Brighton 3186
Median House Price
$3,248,333
2 Bedrooms
$1,747,501
3 Bedrooms
$2,498,333
4 Bedrooms
$3,690,000
5 Bedrooms+
$4,847,500
Brighton, located just 11 kilometres southeast of Melbourne CBD, is synonymous with luxury and elegance in the real estate market.





























