For Sale158 Esplanade, Brighton
Beachside Estate Living
Inspections
This is Brighton at its best, with incredible "never-to-be-built-out" views of sea, sand and sunsets. The perfect backdrop to grand-scale living in this magnificent beachfront home.
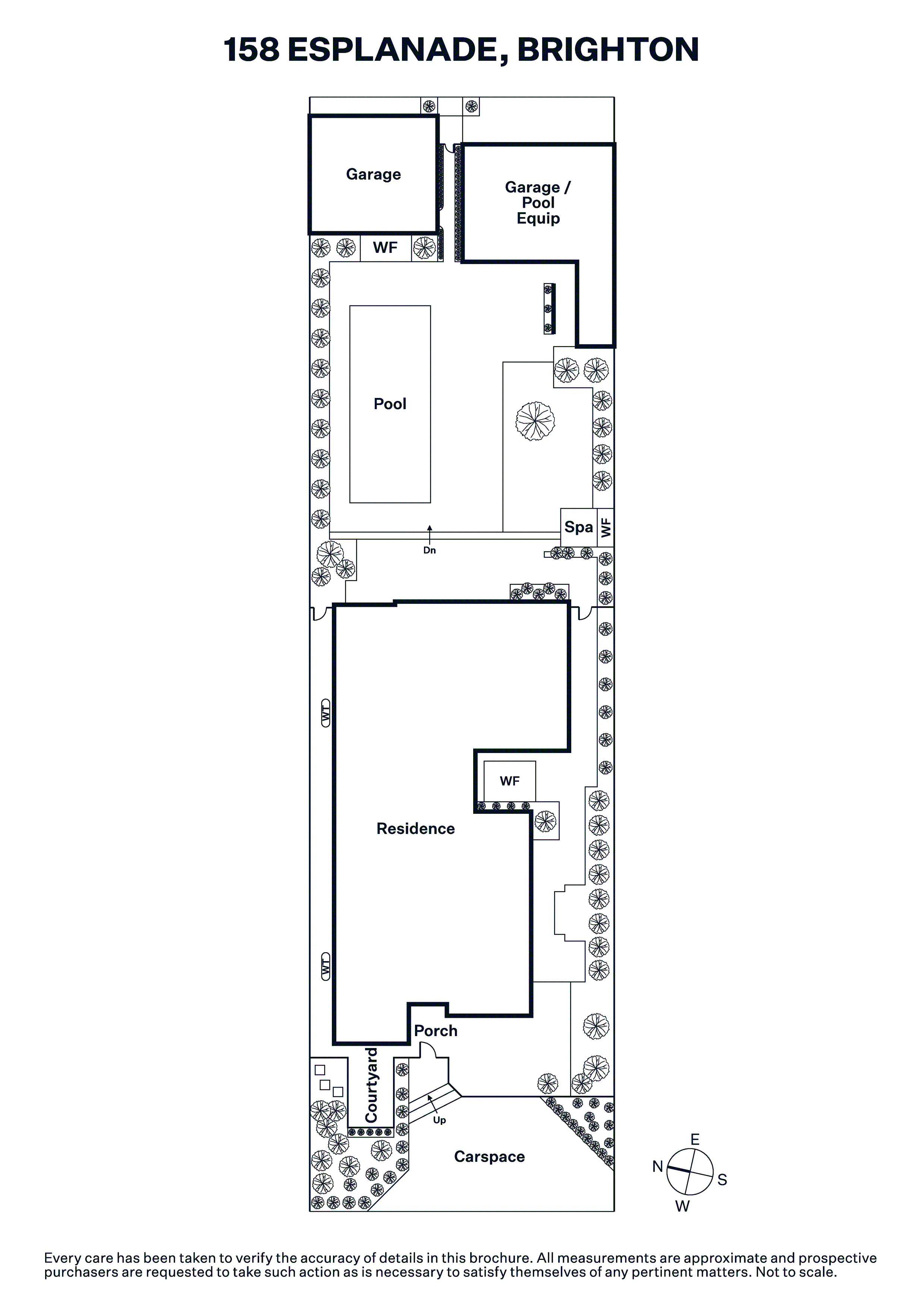
This is a prestige beach location with iconic bathing boxes over the road (at nearby Dendy Beach) and close to Church Street shops, cafes and excellent schools. Perfectly proportioned on 976 square metres of land, the property has the rare advantage of dual access on both Esplanade and Victoria Street. This is advantageous if re-development were ever to be considered.
The resort-inspired private enclosed rear garden opens from a huge family room, providing seamless indoor-outdoor living. The family room is one of four impressive living and dining zones, three of which are fitted with cheerful and cosy gas fireplaces. Fine design has created a stylish formal lounge with a gas fireplace and access to a private, secure and sheltered outdoor space and garden at the front of the block. A double-height void surrounding the staircase is fitted with a recently installed compact lift to assist with any mobility challenges. There is a generous separate dining room accessed from both the formal lounge and the kitchen, with a view of a water feature in a lily pond.
The renovated kitchen has VJ panelled cabinetry which provides extensive storage in convenient drawers and pantry. Fitted with Electrolux appliances and an island bench/breakfast counter wrapped in curved timber. A service hatch window from the kitchen makes outdoor entertaining easy.
In all there are four bedrooms and a study/fifth bedroom. The huge main bedroom is en-suite with an extensive dressing room. The views from the parents' retreat, upstairs lounge (with gas fireplace) and big balcony are some of Brighton's best, perfect for seeing ships crossing the bay, kite surfers and CBD's skyscrapers. Two further bathrooms (one downstairs, one upstairs) serve the other 3/4 bedrooms.
There is a generous laundry with extensive storage space and access to the side courtyard.
The wide hallways give an impressive sense of space. Italian marble and oak flooring, textured carpeting, stone benches and contemporary tapware complete the quality fit-out. An entry intercom permits visitor access from both front and rear gates, and a security alarm system is fitted. Reverse cycle air conditioning/heating and ceiling fan are fitted and can be supplemented if desired with either electric underfloor heating (in the family/kitchen area) or ducted heating (in the other downstairs areas). Extensive indoor re-wiring, new lighting and fitting of integrated smoke detectors have been done. Movement activated outdoor security lights and garden lighting have been fitted.
There's so much space outdoors with sun-drenched paved terrace, a grassed area and spa. The sparkling pool has a current certificate of pool safety compliance and can be heated by the recently installed solar panels (on top of one of the garage roofs). The pool is provided with an equipment room and a shower-room with toilet.
In addition to the two double garages (4 cars and storage space) at the rear (Victoria Street) there is off-street parking for two cars on the front driveway off the Esplanade, and further parking spaces are generally available in Victoria Street (with the use of Council provided Visitors' permits if more than 2 hours are required).
Enquire about this property
Request Appraisal
Welcome to Brighton 3186
Median House Price
$3,215,000
2 Bedrooms
$1,756,250
3 Bedrooms
$2,496,250
4 Bedrooms
$3,477,500
5 Bedrooms+
$5,047,500
Brighton, located just 11 kilometres southeast of Melbourne CBD, is synonymous with luxury and elegance in the real estate market.






























