Sold13 Howard Street, Kew
English Elegance with City Views
This impressive, beautifully presented English-styled brick family residence c1934 graces a magnificent allotment framed by front and rear soaring Liquid Amber and Oak trees, occupying leafy Paul Bangay designed gardens which stretch back to the reserve along Thornton Street. Recently refurbished, the home is enhanced by a quiet position on the old Oakland Estate in the prized Studley Park precinct. Offering an idyllic lifestyle close to the CBD, Kew Junction shops, including Leo's Fine Foods, Toscanos, cafes and restaurants. Whilst also offering easy access to many of Melbourne's finest schools plus public transport options, Victoria Gardens Complex, Abbotsford Convent and the ever popular Yarra River recreational parklands.
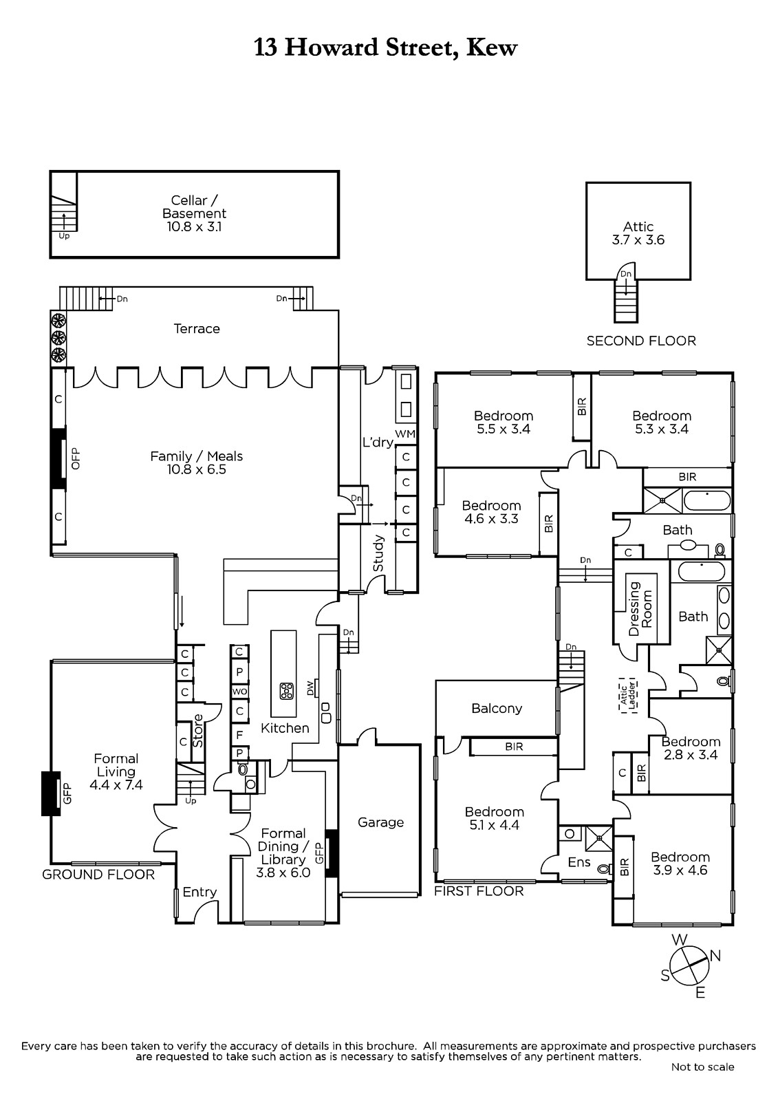
Whilst the façade reflects its past heritage with high pitched gables, the interior exudes warmth and character with subtly retained period features superbly blended with its more contemporary styling. Oak herringbone parquetry floors flow through the downstairs leading to a library/dining room, powder room plus the formal and informal living areas featuring glass walls surrounding a central courtyard with tranquil water feature; serviced by a superb marble, stainless steel and Miele equipped kitchen plus a large adjacent laundry and study flowing to a gently shaded terrace and outdoor entertaining area. Whilst upstairs features six bedrooms with BIRs, main with ensuite and private balcony, two family bathrooms and a walk-in dressing room. Other features include some City views, v/intercom, alarm, gas LFPs & OFP (living), hydronic heating, R/C air conditioning (upstairs), new carpets, surround sound, gas/mains BBq, extensive storage including basement/cellar & attic room, watering system, 40,000ltr underground tank, remote garage & tandem off-street parking.
Land size: 853sqm approx.
Enquire about this property
Request Appraisal
Welcome to Kew 3101
Median House Price
$2,666,500
2 Bedrooms
$1,575,000
3 Bedrooms
$2,173,500
4 Bedrooms
$2,926,250
5 Bedrooms+
$4,580,000
Kew, positioned just 5 kilometres east of Melbourne's CBD, is renowned for its sophistication and elegance.
























